Creazione di uno scavo/riempimento a quota fissa

Top  Previous  Next

Si utilizzi il disegno Triang-1.dwg presente nella cartella

C:\Program Files\leS\CADPak\Esempi\Topografia\PianiQuotati\

 

Triang-1_01

 

E si supponga di voler generare uno scavo a fondo piano ed ad una determinata quota. Nel caso presentato si consideri la quota 270,00 metri.

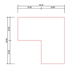
Si tracci quindi una polilinea che individua la zona, nel caso a forma di L con lati come indicato:

 

Triang-1_02

 

In modo da ottenere la seguente figura:

 

Triang-1_03

 

Selezionare la polilinea e modificare la quota al valore assegnato:

 

Triang-1_04

Triang-1_05

 

Utilizzare ora il comando TrigonTrReTr (dalla toolbar Triangoli del menu Topografia)

Triang-1_06

Selezionare la polilinea così tracciata. Saranno temporaneamente eliminati i triangoli interessati e verrà richiesto di selezionare un punto interno. Individuare un punto interno alla triangolazione avendo cura di stare il più possibile nei pressi del bordo. In caso di fallimento del comando riprovare in altra zona.

 

Triang-1_07

 

Ottenendo così la modifica alla triangolazione richiesta, si veda la visualizzazione 3D.

 

Triang-1_09

 

In una vista 3D ombreggiata (dopo aver trasformato le 3DPoly in 3DFace) il risultato è il seguente:

 

Triang-1_10 Triang-1_11

 

Nota

Il comando funziona solo su una triangolazione materializzata con oggetti 3DPolyline, nel caso si abbiano oggetti di tipo 3DFace, dovranno essere convertiti in 3DPolyline. Per eseguire ciò si utilizzi il comando D3F2PLV (presente nella toolbar Topografia Triangoli).

 

Triang-1_08