Identificativo del fabbricato, tettoia o rudere

Top  Previous  Next

clip0036

 

L’identificativo del fabbricato è un testo (lettera F di colore rosso) inserito automaticamente nel layer PC2_Fabbricati e deve essere inserito all’interno di ogni fabbricato. In questo modo si risolvono le ambiguità dovute ad alcune situazioni di graffatura come quella riportata nelle figure seguenti. Non importa in quale parte è inserito l’identificativo della particella.

Nel caso una particella contenesse più di un fabbricato, ogni fabbricato dovrà contenere l’identificativo di fabbricato (la ‘F’).

 

Nel caso seguente la ‘F’ identifica univocamente quale delle due figure rappresenta il fabbricato: nella prima figura è la corona, nella seconda è il quadrilatero centrale:

 

 

In questo caso la ‘F’ identifica univocamente quale delle due parti della particella rappresenta il fabbricato: nella prima figura è la parte a destra, nella seconda è la parte a sinistra:

 

 

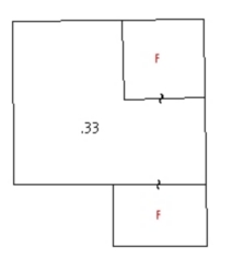
In questo caso invece la ‘F’ identifica univocamente le due zone della particella adibite a fabbricato:

 

Nel caso di tettoie o ruderi il testo utilizzato non sarà ‘F’ ma ‘TR’.