Inserisci staffe

Top  Previous  Next

Nome Comando al Prompt: DDCEMENTI ARMATI_STAFFE

 

clip0017_Cementi

Questo comando permette il tracciamento di una staffa a due bracci all'interno di una sezione trasversale e il tracciamento in una zona esterna, quotando la staffa con le misure dei bracci e dello sviluppo. E' possibile fornire anche un testo per la posizione. La selezione dei lati della sezione a cui appoggiare la staffa avviene come selezione di quattro linee.

 

Per cui è possibile eseguire la staffatura anche di sezioni irregolari, cioè non rettangolari. Anche in questo caso viene eseguito il controllo di layer per cui se, inavvertitamente, si seleziona un'entità che non è situata sul layer corretto per i lati della sezione viene emesso un messaggio di errore ed il lato non è selezionato.

Tutte le quote sono gestite in cm, anche se l'unità di misura è impostata a metri. Ricordarsi , prima di disegnare staffe e sezioni. di impostare il corretto valore del denominatore di scala ed abituarsi ad utilizzare il PAPER SPACE (spazio carta, CADPak lo gestisce al meglio con i comandi presenti nella toolbar Spazio carta di CADUtility ) per la gestione delle stampe con parti di disegno in scale diverse: tipicamente sezioni longitudinale in 1:50 e sezioni trasversali in 1:20.

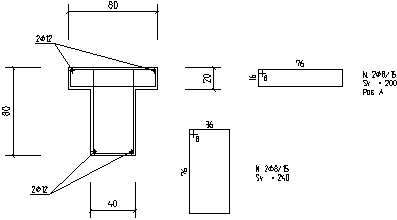
La quotatura della staffa avviene computando la lunghezza dei 4 bracci aumentata del prodotto tra il valore del diametro delle staffe, variabile globale FE111, ed un numero di diametri espresso dalla variabile globale FE117 (modificabile in R12C09). I valori standard forniti con il file CEMENTI ARMATI1.VAR sono 8 per FE111 e 20 per FE117. Nell'esempio seguente per staffa in POS. A si ha:

 

Lstaffa = 56 x 2 + 16 x 2 + FE117 * FE111 * K

Lstaffa = 144 + 8 x 20 x K

Lstaffa =  160

 

N.B.: K è un fattore di scala per la gestione di mm, cm e m.

 

Esempio:

 

Si esegue la staffatura dell'anima e del martello di una sezione a T (la sezione è stata disegnata con il comando DDCEMENTI ARMATI_SEZ):

 

clip0018_Cementi

 

Command: ST4 (Invio)        Nome del comando, si può anche puntare sulla cella della tavoletta;

Selezionare lato 1: (Selezionare)

Selezionare ora i quattro lati, in sequenza ordinata destrorsa o sinistrorsa, della sezione dove si vuole inserire la staffa.

Attenzione al controllo di layer.

Selezionare lato 2: (Selezionare)

Selezionare lato 3: (Selezionare)

Selezionare lato 4: (Selezionare)

diametro staffe [mm]: 8

Inser. ferri costruttivi alti [S/N]: S

Inser. ferri costruttivi bassi [S/N]: N

diametro ferri costruttivi alti: 12

punto di arrivo fascio:

posizionare la staffa.

Al termine di questa selezione viene disegnata la staffa all'interno della sezione, rispettando il valore di copriferro impostato, poi viene richiesto di posizionare una copia della staffa stessa all'esterno della sezione. Una volta individuato tale punto avverrà la quotatura.

 

Quantità (RETURN per nessuna): 1 (Invio)

Viene richiesta la quantità di staffe. Nell'esempio 1.

Diametro [mm] <8>: (Invio)

Viene richiesto il diametro delle stesse. Il default è il valore della variabile globale FE111.

Interasse [cm] <45>: 15 (Invio)

Viene richiesto l'interasse tra le staffe.

Punto di inserimento testo: (Puntare)

Viene richiesto il punto in cui inserire i testi dei dati precedentemente forniti.

Direzione: (F8) (Puntare)

E' richiesta la direzione per l'inserimento del testo. Prima di puntare si prema il tasto F8 per abilitare la modalità ORTHO di AutoCAD. Appena puntato verrà eseguito il testo.

Posizione (RETURN per nessuna): A (Invio)

Se si desidera l'inserimento della posizione la si digiti. Nell'esempio A.

Command:

Ripetere l'operazione per la staffa in posizione B. Per l'esempio si selezionino le linee indicate dal quadratino.

Command: