Quotatura orizzontale

Top  Previous  Next

Nome Comando al Prompt: DH Film

 

E' il comando che permette di creare le quotature orizzontali (cioè parallele all'asse X del sistema di riferimento).

 

Per quotare con tale comando, nella modalità standard, si tracci una linea "virtuale" che intersechi le entità da quotare (si considerano LINEE e POLILINEE). Ad esempio in un disegno architettonico si possono tracciare tante linee "virtuali" quante sono le linee di quota che si vogliono ottenere: automaticamente CADPak riconosce le entità da quotare e crea una quotatura completa formata da una linea di quota totale e una linea di quota per ogni tipologia fornita: murature, assi dei serramenti ecc.

Le metodologie per indicare i punti che si vogliono quotare sono:

-        Selezione diretta di uno dei punti terminali dell'entità;

-        Per punti;

-        Come intersezione di linee virtuali;

 

Su Linea:Tracciare una linea "virtuale" per quotare tutto ciò che essa interseca. Si suddivide in due sotto insiemi:
        Con filtro sui layer:In modo da quotare solo gli oggetti che interseca e che stanno su determinati piani
        Senza filtro:in modo da quotare tutto ciò che la linea "virtuale" interseca.
Per Punti: Per quotare esattamente i punti che si vanno ad indicare (possibilmente con uno dei modi Osnap inseriti)
Per Entità: Per quotare le estremità delle entità selezionate (LINEE o POLILINEE).

 

Il comando in oggetto utilizza per quanto possibile le variabili di sistema di AutoCAD relative alla quotatura, introducendone di nuove nei casi in cui AutoCAD non è in grado di descrivere in modo appropriato lo stile di quota voluto.

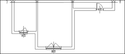
Per illustrare il comando si consideri il seguente esempio in cui si vuole quotare una parte di facciata di un edificio con 3 linee di quota: la totale, le murature e gli assi dei serramenti.

 

 

clip0222_CadUtility

 

1: Box/Layer/GLayer/Prossimo/Uscire/<Su linea>/puNti/Entità/Annulla: (cliccare per individuare, approssimativamente, il punto 1)

al punto: (cliccare per individuare, approssimativamente, il punto 2)

al punto: (Invio)

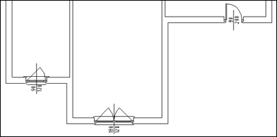
1: Box/Layer/GLayer/Prossimo/Uscire/<Su linea>/puNti/Entità/Annulla: (cliccare per individuare, approssimativamente, il punto 3)

al punto: (cliccare per individuare, approssimativamente, il punto 4)

al punto: (Invio)

1: Box/Layer/GLayer/Prossimo/Uscire/<Su linea>/puNti/Entità/Annulla: (cliccare per individuare, approssimativamente, il punto 5)

al punto: (cliccare per individuare, approssimativamente, il punto 6; per ogni serie di punti che intersecano la linea tracciata saranno individuati, con dei marker rossi, i punti da quotare; il numero 1 davanti al prompt di AutoCAD indica che si sta eseguendo la seconda linea di quota, così come i punti di colore rosso, che è l'1)

 

clip0223_CadUtility

 

al punto: (Invio)

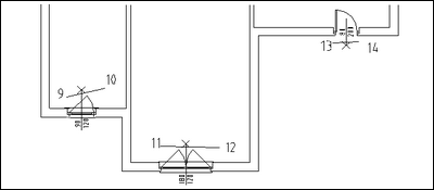
1: Box/Layer/GLayer/Prossimo/Uscire/<Su linea>/puNti/Entità/Annulla: P (Opzione Prossimo, per la successiva linea di quota)

2: Box/Layer/GLayer/Prossimo/Uscire/<Su linea>/puNti/Entità/Annulla: (cliccare per individuare, approssimativamente, il punto 7)

al punto: (cliccare per individuare, approssimativamente, il punto 8; per ogni serie di punti che intersecano la linea tracciata saranno individuati, con dei marker gialli, i punti da quotare; il numero 2 davanti al prompt di AutoCAD indica che si sta eseguendo la seconda linea di quota, così come i punti di colore giallo, che è il 2)

al punto: (Invio)

 

clip0224_CadUtility

 

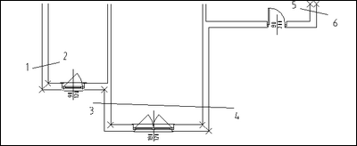
2: Box/Layer/GLayer/Prossimo/Uscire/<Su linea>/puNti/Entità/Annulla: P (Opzione Prossimo, per la successiva linea di quota)

3: Box/Layer/GLayer/Prossimo/Uscire/<Su linea>/puNti/Entità/Annulla: (cliccare per individuare, approssimativamente, il punto 9)

al punto: (cliccare per individuare, approssimativamente, il punto 10)

al punto: (Invio)

3: Box/Layer/GLayer/Prossimo/Uscire/<Su linea>/puNti/Entità/Annulla: (cliccare per individuare, approssimativamente, il punto 11)

al punto: (cliccare per individuare, approssimativamente, il punto 12)

al punto: (Invio)

3: Box/Layer/GLayer/Prossimo/Uscire/<Su linea>/puNti/Entità/Annulla: (cliccare per individuare, approssimativamente, il punto 13)

al punto: (cliccare per individuare, approssimativamente, il punto 14; per ogni serie di punti che intersecano la linea tracciata saranno individuati, con dei marker verdi, i punti da quotare; il numero 3 davanti al prompt di AutoCAD indica che si sta eseguendo la terza linea di quota, così come i punti di colore verde, che è il 3)

al punto: (Invio)

 

clip0225_CadUtility

 

3: Box/Layer/GLayer/Prossimo/Uscire/<Su linea>/puNti/Entità/Annulla: U (Opzione Uscire, per terminare la fase di individuazione dei punti da quotare)

Punto di inserimento: (individuare il punto in cui si vuole inserire la quota, il rettangolo centrato su cursore è il rettangolo di ingombro della quota e serve per favorire il posizionamento)

 

clip0226_CadUtility

 

Opzioni

La linea di comando presenta numerose opzioni che sono descritte di seguito:

Box        Permette la visualizzazione del box di dialogo per la impostazione dei parametri di quota.

 

clip0227_CadUtility

 

Le rispettive variabili globali, dal file CADPak1.VAR sono:

(CP7800 1)    ; metodo di selezione: 1=su linea 2=punti 3=entita`

(CP7801 1)    ; eseguire quotatura totale (1=si 0=no)

(CP7805  5.0) ; distanza tra le righe [mm]

(CP7809 1)    ; usare layer da var. CP1404 (1=si 0=no)

 

(CP7811 10.0) ; lungh. linee di estensione esterne [mm]

(CP7812  3.0) ; lungh. linee di estensione interne [mm]

 

(CP7830  1)   ; disegnare marker (1=si 0=no)

(CP7831  7)   ; dimensioni dei marker in pixel

 

(CP784A   1.0)  ; Se lungh. < di CP784A => testo=lungh. x CP784B

(CP784B 100.0)  ; fattore moltiplicativo (vedi CP784A)

(CP784C   0  )  ; numero decimali (vedi sopra)

 

(CP7850 0)      ; filtro layer: 0=nessuno 1=layer 2=gruppo

(CP7851 "30")   ; filtro layer: layer singolo

(CP7852 "A")    ; filtro layer: gruppo (files *.GLY, default in LAYPAK)

 

LayerPermette di impostare un nome di layer come filtro delle entità da selezionare automaticamente con l'intersezione virtuale. In questo caso la successiva linea di comando si modifica; inizierà con: 1:L<30>: Box/Layer… in cui L<30> significa opzione Layer attiva e 30 è il nome del layer di filtro.
GLayerPermette l'attivazione del filtro sui layer basato sul criterio che ogni linea di quota può avere un filtro diverso e anche multiplo. Il filtro può essere impostato in un file di filtro (estensione GLY). Con CADPak ne viene fornito uno il cui nome è A.GLY ed il cui contenuto è il seguente:

; gruppi standard

*MURI

M*

10

20

30

40

 

*INFISSI

PQ*

FQ*

16

In cui:
-        Le linee vuote e quelle che iniziano col carattere ";" sono ignorate;
-Le linee che iniziano col carattere "*" possono essere seguite da un commento e sono l'indicazione di inizio del gruppo filtro per la linea di quota. Il primo "*" per la prima linea di quota ecc.;

Così nel caso del file precedente la prima linea di quota includerà solo i punti la cui linea di intersezione intersecherà solo LINEE o POLILINEE su uno dei layer: 10203040M* (tutti quelli il cui carattere iniziale sia M).

In questo caso la successiva linea di comando si modifica; inizierà con: 1:G<A>:Box/Layer/… in cui G<A> significa opzione Gruppo Layer attiva e file A.GLY per i nomi dei layer di filtro.

 

ProssimoPermette di passare ad una nuova linea di quota;

 

Uscire        Conclude il comando e permette di posizionare sul disegno le quote;

 

Su LineaPermette di commutare alla selezione dei punti di quota attraverso l'intersezione con linee virtuali;

 

puNti        Permette di commutare alla selezione dei punti di quota per punti;

 

Entità        Permette di commutare alla selezione dei punti di quota per estremi di entità;

 

AnnullaE' l'opzione per annullare l'ultima selezione di punti. Non possono essere annullate selezioni di punti di linee di quote già definite (cioè dopo aver dato l'opzione P)