Zoom scala

Top  Previous  Next

Nome Comando al Prompt: ZSCA Film

 

Questo comando permette di assegnare un determinato fattore di scala ad ogni vista.

È necessario passare allo spazio modello nella vista. Dopo aver indicato un valore che determina il fattore di scala, è richiesto di selezionare il punto centrale su cui effettuare lo zoom.

Sarà così possibile ottenere delle viste, ciascuna con un determinato fattore di scala di stampa.

 

Esempio: Si desidera visualizzare nello spazio carta due viste: una in scala 1:100 ed una in scala 1:50. Per ogni vista sarà necessario utilizzare il comando ZSCA.

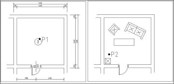
Nella figura seguente è riportata la situazione iniziale, in cui entrambe le viste sono in scala casuale.

 

clip0039_CadUtility

 

Finestra di sinistra:

Comando:_MSPACE (Passare allo spazio modello)

Comando: Zsca

Comando: U.d.m. = metri - Scala 1:50.00

Denominatore di scala per la finestra corrente <50.00>: 100 (fornire il valore 100 per la finestra di sinistra)

Punto centrale: (cliccare un punto, P1, che sarà il centro della finestra una volta applicato il fattore di scala opportuno)

 

Finestra di destra:

Comando: Zsca

Attivato in Spazio Modello

Comando:  U.d.m. = metri - Scala 1:50.00

Denominatore di scala per la finestra corrente <50.00>: 50 (fornire il valore 50 per la finestra di destra, oppure Invio se 50 è già il valore proposto)

Punto centrale: (cliccare un punto, P2, che sarà il centro della finestra una volta che sia applicato il fattore di scala opportuno)

 

Il risultato finale è mostrato nella seguente figura:

 

clip0040_CadUtility